2132 Cannes DriveCarrollton, TX75006
Due to the health concerns created by Coronavirus we are offering personal 1-1 online video walkthough tours where possible.




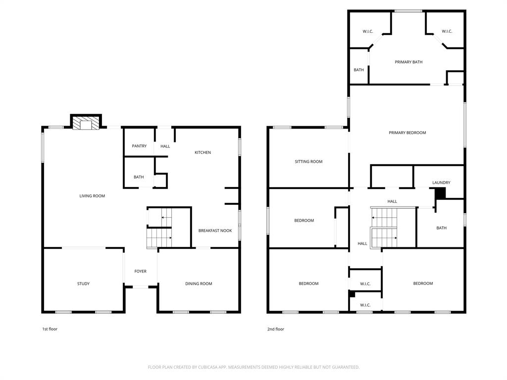
I**MULTIPLE OFFERS RECEIVED. DEADLINE FOR OFFER SUBMIASION IS MARCH 16TH AT 2PM**ncredible in every way! Meticulously maintained home with all the right updates, located just minutes from PGB turnpike and close to fabulous shopping, dining and outdoor recreation. This popular floorplan features a designated office space at the front of the home that is flanked by a wall of brightly lit windows. Spacious living room with recently remodeled fire place featuring marbled surround tiles and a beautiful gas log set. The kitchen with tiled floors, walk in pantry and black appliances, plus tons of counter and cabinet space, a preparation island, and a cozy eat in breakfast nook. For larger gatherings and entertainment, there is a formal dining room just off the kitchen. Sleepy time is upstairs where you will find 4 bedrooms. The 22x15 primary suite is MASSIVE with an attached bonus room that would be perfect as a home gym, 2nd office, nursery or craft room. Full primary ensuite luxury bathroom with bubbly tub, freestanding shower, endless closet space, dual sinks, updated lighting and fixtures. Laundry room is upstairs too - no more hauling laundry up the stairs 🙂 Secondary bedrooms are also over sized with spacious closets, ceiling fans, 2 in faux wood blinds and beautiful wood floors. Backyard entertaining is super easy with astro-turf grass (no mow!). French drain system recently installed at the driveway, and existing system on the sides of the house too. Foundation repaired with lifetime transferable warranty. So much to love, so much to see! Incredible opportunity for a well maintained home at an attractive price.
| yesterday | Listing updated with changes from the MLS® | |
| a week ago | Status changed to Active Under Contract | |
| 2 weeks ago | Listing first seen on site |

© 2020 North Texas Real Estate Information Systems. All rights reserved. Information is deemed reliable but is not guaranteed accurate by the MLS or NTREIS. The information being provided is for the consumer's personal, non-commercial use, and may not be reproduced, redistributed, or used for any purpose other than to identify prospective properties consumers may be interested in purchasing.
Last checked: 2026-03-25 06:27 AM CDT

